Firmanavn · adresse · Tlf. xx xx xx xx · info@mail.dk
Byg og Bo 2016
 
			 
			T-HUSET® en klassiker fra 2-PLAN HUSET
I år viser vi en variant af T-HUSET® hvor klimaskærmen er opført iht. kravene i lavenergiklasse 2020.
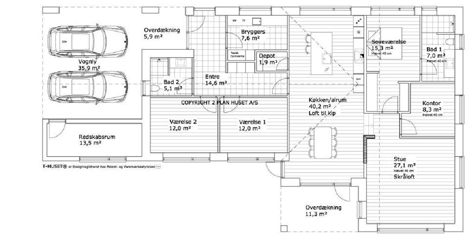
Man ankommer tørskoet til huset via den dobbelte carport og herfra ind i entreen med direkte adgang til bryggers. I denne afdeling af huset er der børneafdeling med to gode værelser og badeværelse. I det store køkken/alrum med loft til kip og topvinduer mod nord og syd strømmer lyset ind. Køkken/alrummet er i åben forbindelse med stuen via en niveauforskydning på 40 cm. Måden hvorpå rummene bindes sammen af kiplofterne er unik og den rumfornemmelse der opnås er indbegrebet af T-HUSET®. Oven for trappen er der adgang til kontor og forældreafdeling med skabsgang og et lækkert badeværelse med stor bruseniche. Fra køkken/alrummet er der også adgang til depotet og den flotte åbne overdækkede terrasse mod syd.
Overalt i huset er der anvendt gode materialer i den høje kvalitet og standard, der kendetegner et hus fra 2-PLAN HUSET. Udvendig er der lagt vægt på et moderne og tidløst design, hvor skarpe kanter og rene linjer er kombineret med et moderne vedligeholdelsesfrit materialevalg som træ-alu vinduer med 3-lags glas, eternit beklædninger, sålbænke i skifer og arkitekttagrender i zink.
Udover den viste løsning er det også muligt at bygge huset, uden forskydning eller med forsænket stue, såfremt terrænet indbyder til dette. Endvidere vil huset kunne bygges med ensidet taghældning eller sadeltag.
Huset opfylder energiklasse 2015 uden brug af solcelleanlæg, og er så godt isoleret at klimaskærmen opfylder kravene til energiklasse 2020.
Husets data
250,4 m2 bebygget areal
183,5 m2 beboelse
17,5 m2 overdækning
13,5 m2 redskabsrum
35,9 m2 vognly
Adresse
Maries Dal 10, 8464 Galten
Åbningstider
Huset er solgt og indflyttet
Denne funktion kræver at cookies er slået til. For at få vist indhold skal du slå cookies til i din browser og/eller acceptere cookies på dette website. OK
Brochure
Fremragende kvalitet og service siden 1976
Vores brochure indeholder information om vores huse. Du kan samtidig læse om, hvorfor du med en løsning fra 2 Plan Huset er sikret et byggeri, der lever op til dine krav om kvalitet - og til en fast pris.
 
	 FÅ VORES BROCHURE
FÅ VORES BROCHURE