Firmanavn · adresse · Tlf. xx xx xx xx · info@mail.dk
Byg og Bo 2024
1-Plan funkis
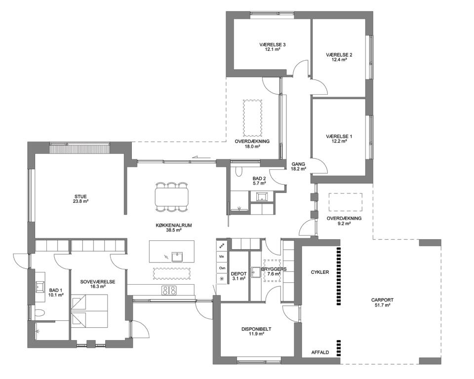
Funkishuset på 213 kvm er stort, men en del af årsagen er, at vi har tænkt ind i fremtidige brugs- og udvidelsesmuligheder. I stedet for det sædvanlige isolerede redskabsrum har vi for en beskeden merpris lagt dette ind under husets klimaskærm, hvorved rummet kan benyttes til mange flere formål.
I tilfælde af at dette fuldisolerede disponible rum benyttes som gæsteværelse, kontor, hobby- eller træningsrum, kan cykelparkeringen forholdsvist let ombygges til et lukket skur. Alternativt kan hele carporten lukkes til en garage, da bredden af carporten er forberedt hertil.
Hovedindgangen med de smalle sidepartier er centreret midt i huset. Det overdækkede areal med lyshullet byder gæster velkommen. Entréen har plads til en bænk og der er skabe i begge sider ad gangen. Til venstre er der adgang til bryggers hvorfra man også når det disponible rum og carporten. Til højre ligger værelsesgangen med 3 gode værelser og bad. Fra værelsesgangen er der adgang til den indbyggede overdækkede terrasse med ovenlys. Lige frem når man Køkken/alrummet med store vinduespartier på tværs af rummet. Køkkenet er det klassiske samtalekøkken med god bordplads. Fra køkkenet er der adgang til et skjult depotrum. Stuen er i halvåben forbindelse med Køkken/alrummet og har brede vinduer med en indbygget siddebænk. Fra det store soveværelse er der direkte adgang til badeværelset og den østvendte morgenterrasse. I forældrebadeværelset er der mod syd en terrassedør som kan benyttes i forbindelse med etablering af spa og udebruser.
Overalt i huset er der anvendt gode materialer i den høje kvalitet og standard, der kendetegner et hus fra 2-PLAN HUSET. Udvendig er der lagt vægt på et moderne og tidløst design, hvor rene linjer er kombineret med et moderne vedligeholdelsesvenligt materialevalg så som træ-alu vinduer med 3-lags glas, blankt murværk, antrazink og skifer.
Husets data
292,6 m2 bebygget areal
213,7 m2 beboelse
27,2 m2 overdækning
51,7 m2 carport og cykelparkering
1064 m2 grund
Adresse
Hvedebakken 103, 8450 Hammel
Åbningstider
Huset er solgt - fremvisning efter aftale
Denne funktion kræver at cookies er slået til. For at få vist indhold skal du slå cookies til i din browser og/eller acceptere cookies på dette website. OK
Brochure
Fremragende kvalitet og service siden 1976
Vores brochure indeholder information om vores huse. Du kan samtidig læse om, hvorfor du med en løsning fra 2 Plan Huset er sikret et byggeri, der lever op til dine krav om kvalitet - og til en fast pris.
FÅ VORES BROCHURE