Firmanavn · adresse · Tlf. xx xx xx xx · info@mail.dk
Byg og Bo 2023 - SOLGT
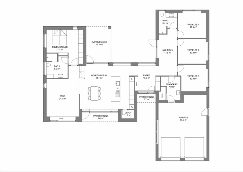
Funkisvilla med garage og gårdhavemiljø.
Hovedindgangen er centreret midt i huset. Den er indbydende med et overdækket areal udenfor, og glasdøren med sideparti giver et godt lys i entréen, hvorfra der også er gennemkig til gårdhaven.
Entréen har indbygget siddebænk med praktiske indbyggede skuffer til den ene side og skabe til den anden. Til højre møder vi bryggers, multirum samt husets værelser. Fra bryggers er der også direkte adgang til den store garage. Fra multirummet er der adgang til badeværelse og tre store lyse børneværelser. I multirummet er der et stort vinduesparti med terrassedør til gårdhaven.
Til venstre for indgangen går man ind i det store køkken/alrum. Her er højt til loftet og store vinduespartier på tværs af rummet. Køkkenet er det klassiske samtalekøkken med god bordplads. Fra køkkenet er der direkte adgang til depotrummet.
Køkken/alrummet er i åben forbindelse med stuen via en niveauforskydning på 40 cm. Oven for trappen ligger stue og forældreafdeling. Stuen har brede vinduer med indbygget siddebænk. Soveværelset har en ekstra lang skabsvæg, og der er direkte adgang til badeværelset. Badeværelset er placeret ved indgangen til soveværelset, således gæster kan benytte dette uden at skulle igennem soveværelset. Vinduesplaceringerne og det gennemgående loft mellem køkken/alrum og stue er afgørende for den unikke rumfornemmelse som kendetegner T-HUSET®. Fra køkken/alrummet er der direkte adgang til den høje overdækkede terrasse. Mod syd er der overdækning ud for de høje vinduer i alrummet for at undgå overophedning i sommermånederne.
Overalt i huset er der anvendt gode materialer i den høje kvalitet og standard, der kendetegner et hus fra 2-PLAN HUSET. Udvendig er der lagt vægt på et moderne og tidløst design, hvor rene linjer er kombineret med et moderne vedligeholdelsesvenligt materialevalg så som træ-alu vinduer med 3-lags glas, blankt murværk, Superwood facadebeklædninger og sålbænke i skifer.
Husets data
282,8 m2 bebygget areal
204,0 m2 beboelse
23,5 m2 overdækning
55,3 m2 garage
1094 m2 grund
Adresse
Hvedebakken 58, 8450 Hammel
Åbningstider
Huset er solgt og indflyttet
Denne funktion kræver at cookies er slået til. For at få vist indhold skal du slå cookies til i din browser og/eller acceptere cookies på dette website. OK
Brochure
Fremragende kvalitet og service siden 1976
Vores brochure indeholder information om vores huse. Du kan samtidig læse om, hvorfor du med en løsning fra 2 Plan Huset er sikret et byggeri, der lever op til dine krav om kvalitet - og til en fast pris.
FÅ VORES BROCHURE