Firmanavn · adresse · Tlf. xx xx xx xx · info@mail.dk
Silkeborg bygger 2018


T-HUSET® funkis
Huset er tegnet specielt til denne lille og udfordrende grund, hvor vi har udnyttet bebyggelsesprocenten fuldt ud og har måttet lave 3 forskudte plan for at kunne overholde kravene til maksimal terrænregulering.
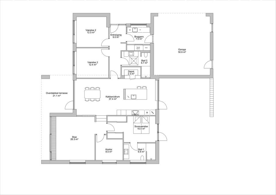
Fra entreén med det brede indgangsparti kan man gå til venstre ind i bryggers hvorfra der er adgang til den dobbelte garage.Fra entréen er der adgang til to gode børneværelser og et stort badeværelse. For enden af gangen kommer man ind i det store køkken/alrum, her er der ekstra lofthøjde og fra topvinduerne mod øst og vest strømmer lyset ind. Der er fra spisepladsen adgang til en overdækket terrasse mod vest og fra køkkenet er der udgang til den syd/østvendte gårdhave. Fra køkken/alrummet er der 40 cm forskydning op til stue, kontor og forældreafdeling med skabsgang og et lækkert badeværelse med stor bruseniche. Det store vinduesparti i stuen er overdækket for at modvirke overophedning på solskinsdage. Overalt i huset er der anvendt gode materialer i den høje kvalitet og standard, der kendetegner et hus fra 2-PLAN HUSET.
Udvendig er der lagt vægt på et moderne og tidløst design, hvor skarpe kanter og rene linjer er kombineret med et moderne vedligeholdelsesfrit materialevalg som træ-alu vinduer med 3-lags glas, cembritbeklædninger, sålbænke i skifer og skjulte tagrender.
Udover den viste løsning er det også muligt at bygge huset, uden forskydning eller med forsænket stue, såfremt terrænet indbyder til dette. Endvidere vil huset kunne bygges med ensidet taghældning eller med sadeltag.
Det er på grunde som denne af afgørende betydning at få den rette kompetente rådgivning vedr. planlægning og indretning af byggeriet.
Huset er selvfølgelig opført iht. energiklasse 2020.
Husets data
245,9 m2 bebygget areal
174,2 m2 beboelse
21,1 m2 overdækning
50,6 m2 garage
702 m2 grund
Adresse
Myntevej 18, 8600 Silkeborg
Åbningstider
Huset solgt og indflyttet
Denne funktion kræver at cookies er slået til. For at få vist indhold skal du slå cookies til i din browser og/eller acceptere cookies på dette website. OK
Brochure
Fremragende kvalitet og service siden 1976
Vores brochure indeholder information om vores huse. Du kan samtidig læse om, hvorfor du med en løsning fra 2 Plan Huset er sikret et byggeri, der lever op til dine krav om kvalitet - og til en fast pris.