Firmanavn · adresse · Tlf. xx xx xx xx · info@mail.dk
Byg og Bo 2018


FUNKIS special
I år viser vi en arkitekttegnet funkisvilla, specielt tilpasset et meget begrænset byggefelt
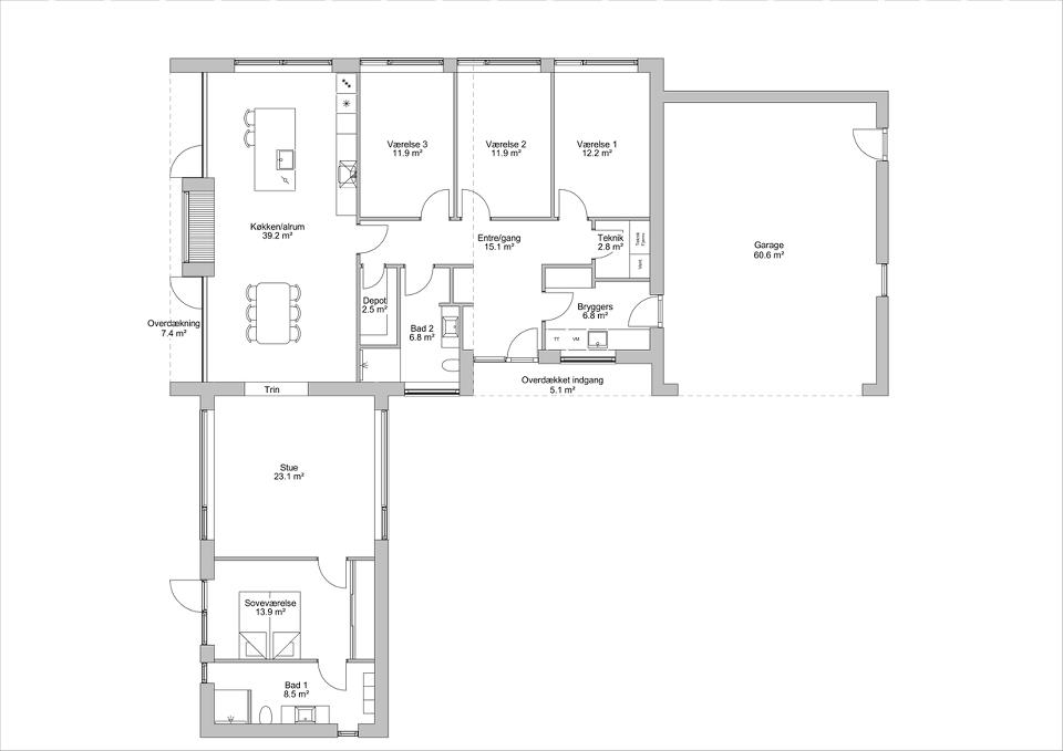
Man ankommer til huset via den store åbne glas entre, fra gangen er der adgang badeværelse, depotrum, teknikrum og til 3 dejlige børneværelser med brede vinduespartier. I dagligdagen vil adgang dog ofte ske gennem bryggerset via den isolerede dobbelte garage, - her er der plads til leg, hobby og opbevaring.
I det store køkken/alrum med højt til loftet og ekstra høje vinduer mod sydvest strømmer lyset ind. Fra køkken/alrummet er der 2 døre ud til terrassen med indbygget solafskærmning i hele rummets længde. Alle vinduer mod sydvest er desuden monteret med solglas.
Køkken/alrummet er i åben forbindelse med stuen via en niveauforskydning på 20 cm. Gennem stuen når man soveværelset hvorfra der er udgang til haven og til det dejlige badeværelse.
Overalt i huset er der anvendt gode materialer i den høje kvalitet og standard, der kendetegner et hus fra 2-PLAN HUSET. Udvendig er der lagt vægt på et moderne og tidløst design, hvor skarpe kanter og rene linjer er kombineret med et moderne vedligeholdelsesfrit materialevalg som træ-alu vinduer med 3-lags glas, eternit beklædninger og sålbænke i skifer.
Udover den viste løsning, er der selvfølgelig rig mulighed for individuelle tilpasninger. Det viste hus er tegnet med udgangspunkt i de typiske ønsker til rum og rumstørrelser, verdenshjørnerne og selvfølgelig grunden som er belagt med mange restriktioner, så som en skovbyggelinie mod sydvest. Det er på grunde som denne af afgørende betydning at få den rette kompetente rådgivning vedr. planlægning og indretning af byggeriet.
Husets data
263,1 m2 bebygget areal
190 m2 beboelse
12,5 m2 overdækning
60,6 m2 garage
959 m2 grund
Adresse
Fruering Skovmark 7, 8660 Skanderborg
Åbningstider
Huset er solgt og indflyttet
Denne funktion kræver at cookies er slået til. For at få vist indhold skal du slå cookies til i din browser og/eller acceptere cookies på dette website. OK
Brochure
Fremragende kvalitet og service siden 1976
Vores brochure indeholder information om vores huse. Du kan samtidig læse om, hvorfor du med en løsning fra 2 Plan Huset er sikret et byggeri, der lever op til dine krav om kvalitet - og til en fast pris.