Firmanavn · adresse · Tlf. xx xx xx xx · info@mail.dk
Byg og Bo 2022 - SOLGT
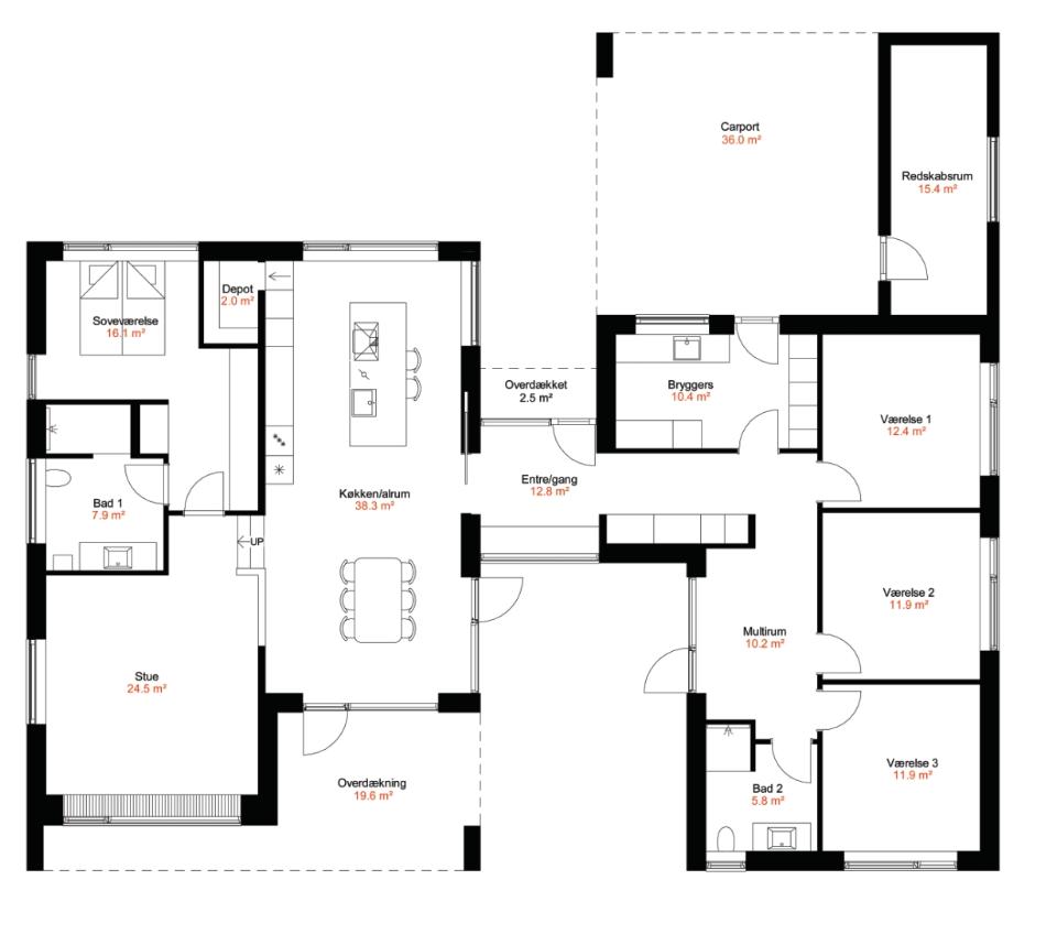
T-HUSET® i funkisstil, nu med gårdhave.
I år viser vi en 205 kvm. funkisvilla med dobbelt carport. Planløsningen tager udgangspunkt i vores klassiker T-HUSET®. Kernen i huset er den unikke og åbne køkken/alrum/stue-løsning med det fantastiske lysindfald og niveauforskydning op i stuen.
Ankomst til huset sker via glasdøren med det store sideparti. Overfor er der en indbygget siddebænk og gennemsyn til gårdhaven. Til venstre indbygningsskabe og døren til bryggers. Fra bryggers er der også direkte adgang til carporten, så er tørskoet adgang til carporten og det isolerede redskabsrum. For enden ad gangen ligger badeværelse og tre store lyse børneværelser. I gangen er der et stort vinduesparti med terrassedør til gårdhaven.
Til højre for indgangen går man via en indbygget skydedør ind i det store køkken/alrum. Her er der 3 meter til loftet og store vinduespartier på tværs af rummet. Køkkenet er det klassiske samtalekøkken. Bag én af køkkenskabslågerne gemmer depotrummet sig.
Køkken/alrummet er i åben forbindelse med stuen via en niveauforskydning på 40 cm. Oven for trappen ligger stue og forældreafdeling. Stuen har brede vinduer med indbygget siddebænk. Soveværelset har en ekstra lang skabsvæg og der er direkte adgang til badeværelset. Badeværelset er placeret ved indgangen til soveværelset således at gæster kan benytte dette uden at skulle igennem soveværelset. Vinduesplaceringerne og det gennemgående loft mellem køkken/alrum og stue er afgørende for det unikke rum som kendetegner T-HUSET®. Fra køkken/alrummet er der direkte adgang til den høje overdækkede terrasse. Denne overdækning fortsætter hen forbi stuevinduerne og fungerer som solafskærmning, for at undgå overophedning i stuen i sommermånederne.
Overalt i huset er der anvendt gode materialer i den høje kvalitet og standard, der kendetegner et hus fra 2-PLAN HUSET. Udvendig er der lagt vægt på et moderne og tidløst design, hvor rene linjer er kombineret med et moderne vedligeholdelsesvenligt materialevalg så som træ-alu vinduer med 3-lags glas, blankt murværk, Cembrit beklædninger og sålbænke i skifer.
Husets data
279,1 m2 bebygget areal
205,6 m2 beboelse
22,1 m2 overdækning
51,4 m2 carport/redskabsrum
928 m2 grund
Adresse
Bjergegårdsvej 23, 8382 Hinnerup
Åbningstider
Huset er solgt og indflyttet
Denne funktion kræver at cookies er slået til. For at få vist indhold skal du slå cookies til i din browser og/eller acceptere cookies på dette website. OK
Brochure
Fremragende kvalitet og service siden 1976
Vores brochure indeholder information om vores huse. Du kan samtidig læse om, hvorfor du med en løsning fra 2 Plan Huset er sikret et byggeri, der lever op til dine krav om kvalitet - og til en fast pris.
FÅ VORES BROCHURE