Firmanavn · adresse · Tlf. xx xx xx xx · info@mail.dk
Byg og Bo 2025


1-Plan funkis
Vi præsenterer en 198 kvm funkisvilla med dobbelt garage, hvor designelementer fra 70'erne smukt flettes sammen med moderne funktionalitet. Huset er bygget op omkring et åbent og gennemgående køkken/alrum, der har udgang til både en sydvendt terrasse og en vestvendt gårdhave.
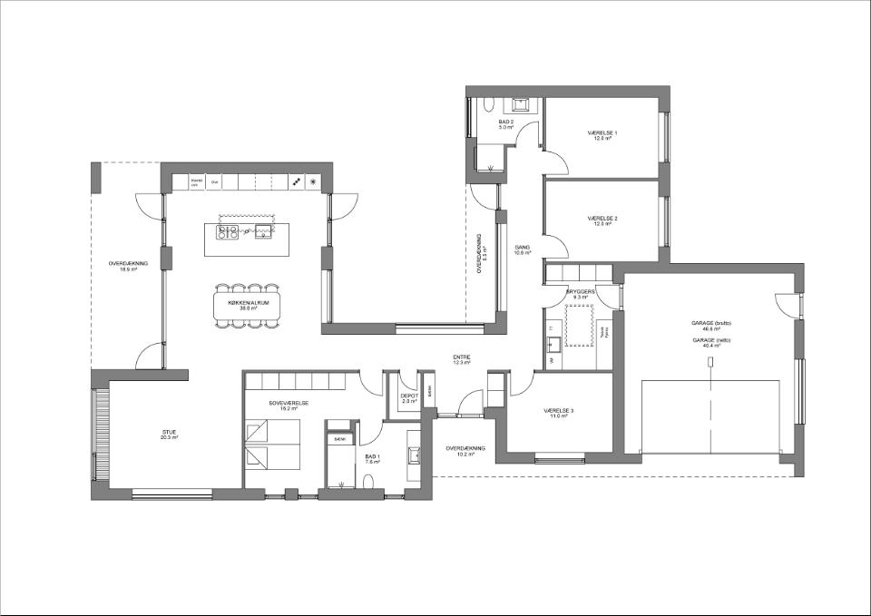
Husets hovedindgang med sideparti er placeret midt på husfacaden. Det overdækkede areal fungerer som en velkomstzone, og fra entréen er der direkte gennemkig til den vestvendte gårdhave, der adskiller voksen- og børneafdelingen. I entréen findes både praktiske skabe og en bænk med skuffer, der giver god opbevaringsplads.
Til højre for entréen ligger en værelsesgang med tre gode værelser, et badeværelse og et funktionelt bryggers med adgang til garagen. Til venstre ligger et depotrum samt et soveværelse med eget badeværelse. For enden af gangen åbner det store køkken/alrum sig, hvor store vinduespartier på tværs af rummet sikrer et fantastisk lysindfald. Køkkenet er det ideelle samtalekøkken med rigelig bordplads, og stuen, der er delvist åbent mod køkken/alrummet, har brede vinduer med indbygget siddebænk, der indbyder til afslapning.
Vi har valgt materialer af højeste kvalitet, som er kendetegnende for et hus fra 2-PLAN HUSET. Udvendigt er der lagt vægt på et tidløst og moderne design, hvor rene linjer kombineres med vedligeholdelsesvenlige materialer som træ-alu vinduer, blankt murværk, Superwood vægbeklædninger, Antra zink og skifer.
Hos 2-PLAN HUSET er vi passionerede omkring at finde den bedste energiløsning, som lever op til fremtidens bæredygtighedskrav. Vi rådgiver jer individuelt om, hvordan vi bedst muligt kan tilpasse huset til de gældende miljø- og klimabestemmelser.
Husets data
278,9 m2 bebygget areal
197,7 m2 beboelse
34,6 m2 overdækning
46,6 m2 garage
813 m2 grund
Adresse
Munkebakken 26, 8370 Hadsten
Åbningstider
Søndag fra kl. 13-16.
Denne funktion kræver at cookies er slået til. For at få vist indhold skal du slå cookies til i din browser og/eller acceptere cookies på dette website. OK
Brochure
Fremragende kvalitet og service siden 1976
Vores brochure indeholder information om vores huse. Du kan samtidig læse om, hvorfor du med en løsning fra 2 Plan Huset er sikret et byggeri, der lever op til dine krav om kvalitet - og til en fast pris.